District : 915 €/qm
Kontaktieren Sie uns Property floor plan
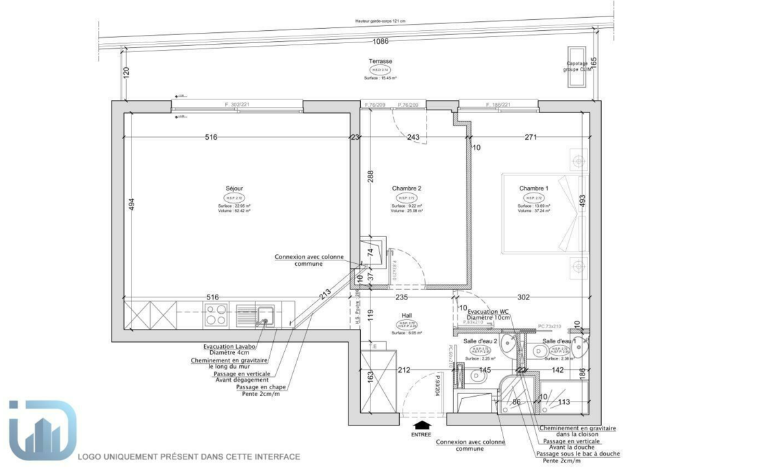
Les Ligures — Sanierte 3-Zimmer-Wohnung mit großer Terrasse und Parkblick. Hochwertige Anlage mit 24/7-Concierge, Pool, Fitness und Tennis. Diele, Wohnbereich mit voll ausgestatteter offener Küche, großes Schlafzimmer mit Duschbad en suite, zweites Schlafzimmer, weiteres Duschbad; Terrasse von allen Räumen zugänglich.
In der prestigeträchtigen Wohnanlage Les Ligures mit 24/7-Concierge, Pool, Fitnessraum und Tennisplatz erwartet Sie diese schöne, vollständig renovierte 3-Zimmer-Wohnung. Sie verfügt über eine große Terrasse mit angenehmem Blick auf den Park der Anlage. Alle Räume öffnen sich nach außen und bieten hohen Wohnkomfort.
Aufteilung:
-
Diele
-
Großzügiges Wohnzimmer mit voll ausgestatteter offener Küche
-
1 großes Schlafzimmer mit Duschbad en suite
-
1 Schlafzimmer
-
1 weiteres Duschbad
-
Terrasse, von allen Zimmern zugänglich
Highlights:
-
Hochwertige Wohnanlage mit umfassenden Services
-
Wohnung komplett renoviert
-
Große umlaufende Terrasse und Grünblick
-
Ruhige Lage, hochwertige Ausführung, privilegiertes Umfeld
Über den Stadtteil Jardin Exotique: Das exotische Gartenviertel liegt hoch oben und bietet einen herrlichen Blick auf Monaco und das Meer. Es hat seinen Namen von dem berühmten botanischen Garten. Ideal für Investoren, die einen Ort zum Leben in einer ruhigen Umgebung und in der Nähe der beliebtesten Gegenden von Monaco suchen, mit einfachem Zugang mit dem Aufzug zu den Vierteln Condamine und Fontvieille. Neben dem exotischen Garten umfasst dieser Bereich auch das Princess Grace Hospital, einen Kindergarten, einen Kindergarten und eine Grundschule sowie einen Kinderpark. Es ist hauptsächlich ein Wohngebiet mit vielen prestigeträchtigen Residenzen wie dem Harbour Light Palace, dem Patio Palace und den Ligures, die ein prächtiges Wohnumfeld und einen unglaublichen Panoramablick auf das Meer bieten.
We look forward to hearing from you and are at your disposal to organize a visit of this property.
Couldn't find a property that suits your needs? Contact us so that we can offer you a selection of properties in line with your project
District : 915 €/qm
Video
Property floor plan
Kontaktieren Sie uns
Let us help you
Discover our new magazine
This document does not form part of any offer or contract. All measurements, areas and distances are approximate. The information and plans contained herein are believed to be correct, however, their accuracy is not guaranteed. The photographs show only certain parts of the property at the time they were taken. This offer is subject to change of price or other conditions, without prior notice.








